Terreno à venda no bairro Jardim Juliana em Jaú - SP
- Referência: TE2967
- 360.00 m²
Realizado
Enviado com sucesso!
Entre em contato
Ligamos para você
Indique este imóvel
Descrição
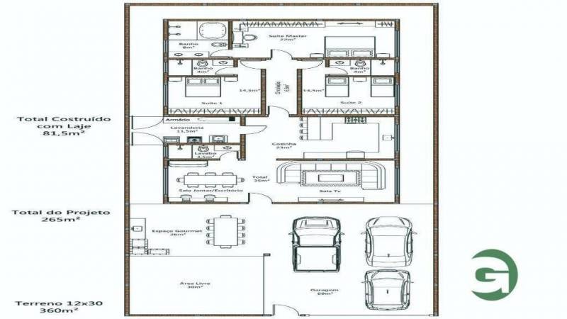
Terreno à venda, 360 m² por R$ 280.000,00 - Jardim Juliana - Jaú/SP
Planta maravilhosa com muitas possibilidade neste terreno de 360 m², são 265,00 m² de construção , toda alicerçada . Parte referente a 81,05 m² esta com paredes e laje, o restante apenas alicerce e parede.
Pensa em construir e quer aproveitar esta oportunidade de uma planta pronta , apenas para finalização e com o diferencial que você pode escolher o o acabamento. Então venho conhecer este imóvel . Em um bairro tranquilo e arborizado!
R$ 280.000,00
*Valor sujeito à variações. ENTRE EM CONTATO com o anunciante.- Código: 468732
- Referência do Anunciante: TE2967
- Última atualização: 18/02/2026 01:46
Anunciante
Imobiliária Gabriel
- Creci: 29.083-J
- Site: www.imobiliariagabriel.com.br/
- Facebook: facebook.com/ImobiliariaGabriel
- Endereço: Rua Sete De Setembro, 356 - Jaú/SP
- Telefone: (14) 2104-0800
- WhatsApp: (14) 2104-0803
Importante
* Valores, disponibilidade e demais informações estão sujeitas à alterações. SEMPRE consulte o anunciante sobre as condições e informações atualizadas do imóvel anunciado.
O Portal Casa Jaú, incluindo todos seus colaboradores, não realizam qualquer intermediação e não participam de nenhuma negociação dos imóveis anunciados.
Todas as informações e imagens deste anúncio fazem parte de um anúncio publicitário e foram fornecidas pelo anunciante Imobiliária Gabriel.
O Portal Casa Jaú não tem controle e não garante a veracidade destas informações.
Móveis e demais objetos exibidos nas fotos não fazem parte da oferta. Contate o anunciante para confirmar a disponibilidade e condições detalhadas para negociação deste imóvel.

















